伝統技術をいかした和の趣ある平屋の住まい
いぶし銀の和瓦と銅板の腰葺きで構成された入母屋屋根が日本家屋の風格ある佇まいを感じられます。
外壁には、左官の漆喰仕上げと腰板に簓子下見板張りが施されており、これらはすべて日本の建築に古くから用いられている伝統の建築技術です。
日本の風土に合った素材や理にかなった手法に新しい技術を取り入れて、東海道沿いの歴史ある町の景観を損なわないよう配慮しつつ、現代の暮らしに馴染む端正な日本家屋です。
.jpeg)


家族がそれぞれの居場所でくつろぎながら同じ空間を共有するひとつなぎのLDK。
ひとつの空間となったLDKでは、コントラストをつけるため入口からキッチンまでの天井高を抑え、リビングから勾配天井やR形状の壁で空間の広がりをもたせています。左官で白く塗られた天井は自然の明るさを確保し、天竜ひのきの浮造り加工を施した床は、心地良い足触りが特徴。
大開口の木製サッシを採用し、広々としたリビングは道路側からの視線を遮る間取りでプライベートな空間を確保しています。
キッチンは内装材にあわせてひのきを使用し、アイランド型のハイカウンターにすることでLD側や入口から手元を隠すように、カップボードは高さを抑えて上段の棚まで使い勝手を良くして、住まい手に配慮した設計で造作しています。
玄関は、段差を抑えた敷台と上り框、正面には天竜桧の下足入れの扉が美しく並び、来る人を心地よく出迎えます。天井には葦が貼られ、縦の手摺りは栗材を使用した京都職人による名栗加工で手触り良く、玄関戸は横格子の引戸でやわらかな明るさを取り入れています。
ひとつの空間となったLDKでは、コントラストをつけるため入口からキッチンまでの天井高を抑え、リビングから勾配天井やR形状の壁で空間の広がりをもたせています。左官で白く塗られた天井は自然の明るさを確保し、天竜ひのきの浮造り加工を施した床は、心地良い足触りが特徴。
大開口の木製サッシを採用し、広々としたリビングは道路側からの視線を遮る間取りでプライベートな空間を確保しています。
キッチンは内装材にあわせてひのきを使用し、アイランド型のハイカウンターにすることでLD側や入口から手元を隠すように、カップボードは高さを抑えて上段の棚まで使い勝手を良くして、住まい手に配慮した設計で造作しています。
玄関は、段差を抑えた敷台と上り框、正面には天竜桧の下足入れの扉が美しく並び、来る人を心地よく出迎えます。天井には葦が貼られ、縦の手摺りは栗材を使用した京都職人による名栗加工で手触り良く、玄関戸は横格子の引戸でやわらかな明るさを取り入れています。






コーナーの窓を配置し坪庭を眺めながらゆったりくつろげる浴室。壁材と脱衣場の床にも十和田石を貼ることで、濡れた素足でも心地よい。
洗面台のシェルフは身長差のあるご家族が使いやすい縦型のミラーを使用しミラーの内側にも収納を確保しています。
手洗室は2本引きの製作引戸になっており、左右どちらからも開閉が可能です。
握りやすいように名栗加工が施された縦の手摺は栗材を使用した京都の職人による製作。
バリアフリーの浴室とお手洗いは、終の棲家となる住まいにおいて重要なポイントです。扉をすべて引き戸にすることで、歩行器や車いすを想定し、使い勝手良くゆったりした間口を確保しています。さらに引き戸を開放しておくことで、室内空間をつなげて温度差のバリアフリーにも効果的です。
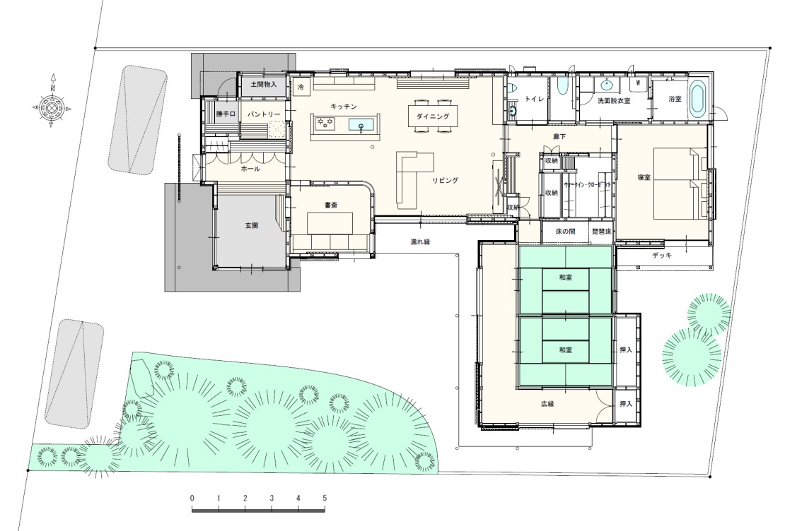
二間続きの和室では、広縁を介して庭を望む。LDKの室内空間ではモダンな雰囲気を持たせつつ、和室では、北山杉の名栗の床框に琵琶床、床柱は皮付の赤松柱に筍目、落とし掛けは杉の浮造りなど純和風の造りを大切にしています。
洗面台のシェルフは身長差のあるご家族が使いやすい縦型のミラーを使用しミラーの内側にも収納を確保しています。
手洗室は2本引きの製作引戸になっており、左右どちらからも開閉が可能です。
握りやすいように名栗加工が施された縦の手摺は栗材を使用した京都の職人による製作。
バリアフリーの浴室とお手洗いは、終の棲家となる住まいにおいて重要なポイントです。扉をすべて引き戸にすることで、歩行器や車いすを想定し、使い勝手良くゆったりした間口を確保しています。さらに引き戸を開放しておくことで、室内空間をつなげて温度差のバリアフリーにも効果的です。
二間続きの和室では、広縁を介して庭を望む。LDKの室内空間ではモダンな雰囲気を持たせつつ、和室では、北山杉の名栗の床框に琵琶床、床柱は皮付の赤松柱に筍目、落とし掛けは杉の浮造りなど純和風の造りを大切にしています。



軒下空間となる軒桁・垂木・柱には、京都北山杉の磨き丸太を使用し、構造材には、地域材である天竜材の杉や桧を採用。
柱一本一本、すべて自社大工の手仕事によって墨付け手刻みされており、この大工技術は後世に残していきたい大切な日本の伝統技術です。
お施主様のお言葉
「終の住処として、安心で、快適に楽しく過ごせる理想の家に、大満足しています。日本の伝統技術を活かした造りの美しさや、柔らかい木の足触りや手触りに日々囲まれる日常を創ってもらい、大瀧さんにお願いして本当によかったです。」
設計 大瀧建築 大瀧 健太
施工 大瀧建築
デザイン協力 sail 中村 圭吾
竣工 2023年
木造平屋 延床面積 47.28 坪
浜松市・百年住居る事業申請(助成金50 万円)
柱一本一本、すべて自社大工の手仕事によって墨付け手刻みされており、この大工技術は後世に残していきたい大切な日本の伝統技術です。
お施主様のお言葉
「終の住処として、安心で、快適に楽しく過ごせる理想の家に、大満足しています。日本の伝統技術を活かした造りの美しさや、柔らかい木の足触りや手触りに日々囲まれる日常を創ってもらい、大瀧さんにお願いして本当によかったです。」
設計 大瀧建築 大瀧 健太
施工 大瀧建築
デザイン協力 sail 中村 圭吾
竣工 2023年
木造平屋 延床面積 47.28 坪
浜松市・百年住居る事業申請(助成金50 万円)

